Aprašymas
Gamintojas: Zehnder
Modelis: PAUL Climos F 200 ECO
Kilmės šalis: Vokietija
Garantija: 2 metai
Horizontalus entalpinis įrenginys su šilumos ir drėgmės grąžinimo savybe
- Entalpinis šilumokaitis – priešpriešinio srauto plokštelinis su drėgmės grąžos savybe.
- Plieno korpusas – užtikrina tylų veikimą.
- Efektyvumas iki 84% – tinkamas A++ klasės namams.
- Maksimalus oro srautas 200 m³/val (200 Pa) – tinka būstams iki 100 m².
- Pasyvaus namo instituto sertifikatas: Zehnder PAUL Climos 200 Passive House Certificate.
- Korpuse integruotas 0,7 kW šildymo tenas.


VALDYMAS:
- išorinis supaprastintas įrangos valdiklis.

VERSIJA: kairinė arba dešininė.
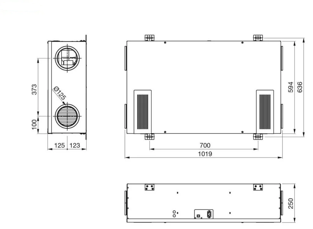
IŠMATAVIMAI: 1019x591x250 mm (PxGxA).
PAJUNGIMAS: 4xØ125 mm.
FILTRAI: G4 + F7.
Rekuperatoriui nereikalingas kondensato nuvedimas.
Moduliuojama Bypass sklendė.
DOKUMENTAI ATSISIUNTIMUI:
Rekuperatoriaus techniniai duomenys

ZehnderGrouppriklausantis Vokietijos vėdinimo įrengimų ir šilumokaičių gamintojas PAUL Wärmerückgewinnung Gmbh yra žinomas ir kaip pasyviems namams skirtų aukštus energijos vartojimo efektyvumo rodiklius turinčių vėdinimo įrenginių ekspertas. Vėdinimo įrangos produktų linijos PAUL gaminiuose yra įrengti priešpriešinio srauto plokšteliniai šilumokaičiai, efektyvūs EC ventiliatorių varikliai ir šilumokaičiai su drėgmės grąža. PAUL vėdinimo įrenginys Climos 200 skirtas montuoti ant lubų ir nereikalauja kondensato išleidimo jungties (įrangoje yra standartinis šilumokaitis su drėgmės grąžos funkcija). PAUL Climos 200 puikiai tinka butų vėdinimo sistemoms, kur nėra atskiros, vėdinimo įrangai montuoti tinkamos patalpos. Šilumokaitis su drėgmės grąža žiemą, šildymo laikotarpio metu, į patalpų orą grąžina apie 70% drėgmės ir žymiai sumažina įrangos apsaugos nuo užšalimo ribą. Aukšta šilumos grąža ir mažas ventiliatorių energijos suvartojimas leidžia įgyvendinti griežčiausius energijos vartojimo efektyvumo reikalavimus.
Zehnder vėdinimo įrenginių pristatinėti nebereikia – šio Vokietijos gamintojo vardas asocijuojasi su efektyvia, drėgmę grąžinančia rekuperacine vėdinimo sistema, o tuo pačiu ir sveiku bei energiją tausojančiu mikroklimatu namuose. Išskirtinis dizainas, maži triukšmo parametrai, itin didelis šilumos grąžos koeficientas, maži elektros suvartojimo rodikliai – tai kertiniai akcentai kalbant apie aukščiausios kokybės Zehnder rekuperatorius.

Prekės kodai: 527006330/527006320, 8717573042352/8717573042345






